Welkom, bij Doeslaan 6
2351 SR, Leiderdorp
€350.000 K.K.














































Wat maakt deze woning uniek?
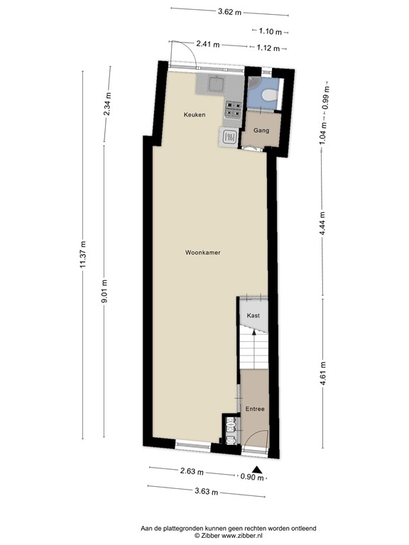
Aan een gezellige straat, op loopafstand van de polder én het water van rivier de Does, ligt deze sfeervolle en verrassend complete 3 kamer tussenwoning met dakterras en berging. Een charmant huis met authentieke uitstraling, een uitgebouwde woonkamer en twee ruime slaapkamers. Voor deze prijsklasse is dit type woning in Leiderdorp tegenwoordig zeldzaam. Naast de riante woonkamer kan je vanuit de keuken in de uitbouw zo naar buiten en naar het water.
De woning ligt in een rustige woonomgeving met veel groen en water in de directe nabijheid. V
Samengevat
Type
Huis
Bouwjaar
1894
Wonen
71 m²
Perceel
68 m²
Kamers
3
Slaapkamers
2
Bekijk alle kenmerken van deze woning
Overdracht
Vraagprijs€350.000 K.K.
Vraagprijs per m²€4.929,58
StatusBeschikbaar
AanvaardingIn overleg
Bouwjaar
Soort woningEengezinswoning, Tussenwoning
Bouwjaar1894
Waar kom ik straks te wonen?
Loading Map…
Hoe duurzaam is deze woning?
Deze woning heeft energielabel: D
Woningen met een label D zijn meestal gebouwd in de jaren tachtig en negentig en zijn matig, of helemaal niet geïsoleerd. De grootste winst in verduurzaming bij deze woningen valt te behalen door extra isolatie of dubbel glas toe te passen. In de meeste gevallen is de cv-ketel ook aan vervanging toe.
Type isolatieDakisolatie, Muurisolatie, Dubbel glas, HR-glas
VerwarmingsinstallatieWaterverwarmer
Warm waterWaterverwarmer
Energielabel geldig tot
Hoe werkt het verkoopproces?
Stap 1: Bekijk de woning
Al geïnteresseerd in deze woning? Plan direct een bezichtiging via de onderstaande knop.
Plan een bezichtigingBestudeer de stukken
Plaats een bod
Gunning
Vrijgave Biedlogboek
Stap 2: de stukken bestuderen
Voorafgaand aan de bezichtiging is het aan te raden om alle stukken goed te bestuderen als onderdeel van de onderzoeksplicht.

Stap 3: een bod uitbrengen
Is dit de volgende droomwoning? Breng dan eenvoudig digitaal een bod uit in het Biedlogboek van Eerlijk Bieden

Veelgestelde vragen
Wanneer kan de notariële overdracht van Doeslaan 6 plaatsvinden?
De verkopers van Doeslaan 6 hebben de volgende voorkeur voor notariële overdracht aangegeven: Zo snel mogelijk.
Is er parkeergelegenheid in de buurt van Doeslaan 6?
In de buurt van Doeslaan 6 zijn de volgende parkeermogelijkheden beschikbaar: Openbare parkeerplaats.
Contact met de makelaar

Obèr Makelaardij
Vragen aan de makelaar over dit pand of wilt u direct een bezichtiging plannen? Gebruik dan het bijgevoegde contactformulier.
Hoe kunnen wij u van dienst zijn?
Misschien vindt u deze woningen ook interessant?

Buitendijklaan
2353 SC Leiderdorp
€575.000 K.K.

Charlotte de Bourbonstraat
2351 RJ Leiderdorp
€550.000 K.K.

Buitendijklaan
2353 VR Leiderdorp
€875.000 K.K.

